Passeig de la Zona Franca

Un piso moderno y funcional con mucho espacio de almacenaje

Los propietarios adquirieron un ático con terraza con la idea de reformarlo por completo a medida, utilizando materiales de calidad.

Para el nuevo diseño se tuvieron en cuenta todas sus necesidades y gustos. Principalmente buscaban una nueva vivienda con mucho almacenaje donde poder guardar todo lo que han ido acumulando a lo largo de su vida. Y más teniendo en cuenta que venían de un piso mucho más grande. Por este motivo se ha diseñado todo sabiendo que iba a ir en cada sitio.

Por toda la vivienda se han instalado muebles a medida del fabricante Tegar para optimizar al máximo todos los espacios. Destacar el armario de la pared del cabecero, el mueble del salón compuesto por diferentes módulos (armarios, vitrinas, cajones y estantes), el zapatero ubicado en el pasillo, el armario con un pequeño despacho integrado y los armarios empotrados a la pared.

La cocina era otro punto clave ya que les gusta mucho cocinar. Después de la reforma se ha conseguido una cocina moderna y grande, abierta al salón, compuesta por una gran variedad de módulos, consiguiendo una muy funcional y práctica. La campana extractora decorativa de Pando aporta diseño y personalidad siendo la protagonista absoluta de esta cocina. Tanto en la encimera como en todo el frontal se ha utilizado un material Dekton modelo Nillum inspirado en la estética industrial que presenta una mezcla de colores cálidos que combina a la perfección con el resto de tonalidades presentes en este espacio. Otro elemento a destacar es la alfombra cerámica presente en el pavimento que otorga más dinamismo visual y mayor impacto.

El comedor, a modo de península, divide la cocina y la zona de TV. Al estar unido al mueble de la cocina se ha utilizado un sobre de mesa del mismo material que la encimera, quedando integrado al conjunto. Y las patas en antracita, al igual que la campana, las lámparas colgantes, los mecanismos y los tiradores de los muebles para crear armonía y romper la monotonía.

A nivel de estilo los clientes querían huir de los grises, por esta razón se ha recurrido a las tonalidades arena. De forma muy puntual se ha utilizado la madera y en una tonalidad que juega mucho con el resto de colores, para no convertirla en protagonista ya que en el piso en que vivían anteriormente era muy presente y buscaban darle un aire diferente.

Finalizamos con la terraza, otro espacio que valoraban mucho de este piso. Con la reforma se ha instalado en el salón una balconera de doble hoja que quedan ocultas (de la marca Kline) y que permite duplicar el paso a la terraza, quedando así una comunicación mucho más fluida entre los dos espacios e incentivando así que la disfruten más. De este espacio destacar el banco de obra y la estructura creada en listones de madera con jardín vertical.

Fotografías: Irene Díaz

Características

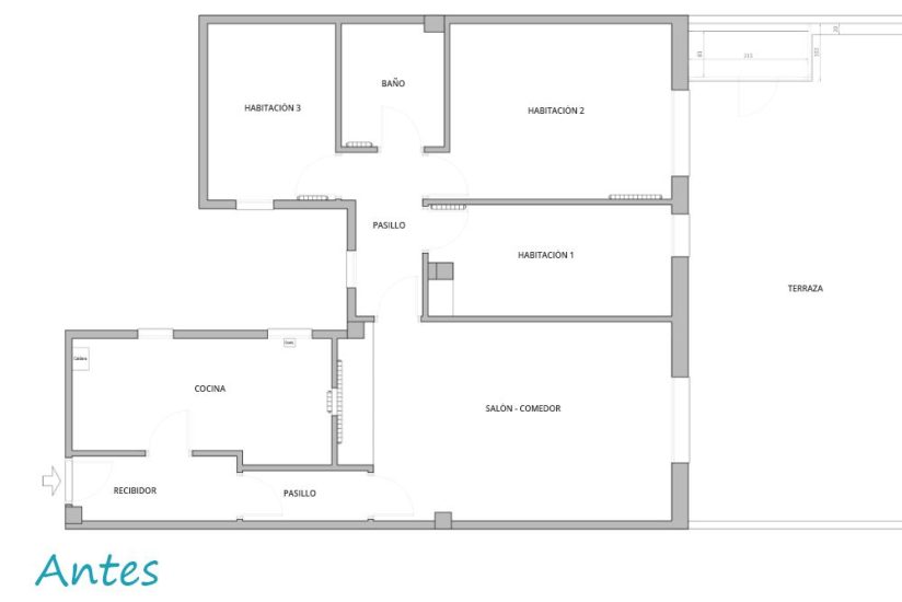
Miniatura distribución plano zona franca

Un piso moderno y funcional con mucho espacio de almacenaje

Los propietarios adquirieron un ático con terraza con la idea de reformarlo por completo a medida, utilizando materiales de calidad.

Para el nuevo diseño se tuvieron en cuenta todas sus necesidades y gustos. Principalmente buscaban una nueva vivienda con mucho almacenaje donde poder guardar todo lo que han ido acumulando a lo largo de su vida. Y más teniendo en cuenta que venían de un piso mucho más grande. Por este motivo se ha diseñado todo sabiendo que iba a ir en cada sitio.

Por toda la vivienda se han instalado muebles a medida del fabricante Tegar para optimizar al máximo todos los espacios. Destacar el armario de la pared del cabecero, el mueble del salón compuesto por diferentes módulos (armarios, vitrinas, cajones y estantes), el zapatero ubicado en el pasillo, el armario con un pequeño despacho integrado y los armarios empotrados a la pared.

La cocina era otro punto clave ya que les gusta mucho cocinar. Después de la reforma se ha conseguido una cocina moderna y grande, abierta al salón, compuesta por una gran variedad de módulos, consiguiendo una muy funcional y práctica. La campana extractora decorativa de Pando aporta diseño y personalidad siendo la protagonista absoluta de esta cocina. Tanto en la encimera como en todo el frontal se ha utilizado un material Dekton modelo Nillum inspirado en la estética industrial que presenta una mezcla de colores cálidos que combina a la perfección con el resto de tonalidades presentes en este espacio. Otro elemento a destacar es la alfombra cerámica presente en el pavimento que otorga más dinamismo visual y mayor impacto.

El comedor, a modo de península, divide la cocina y la zona de TV. Al estar unido al mueble de la cocina se ha utilizado un sobre de mesa del mismo material que la encimera, quedando integrado al conjunto. Y las patas en antracita, al igual que la campana, las lámparas colgantes, los mecanismos y los tiradores de los muebles para crear armonía y romper la monotonía.

A nivel de estilo los clientes querían huir de los grises, por esta razón se ha recurrido a las tonalidades arena. De forma muy puntual se ha utilizado la madera y en una tonalidad que juega mucho con el resto de colores, para no convertirla en protagonista ya que en el piso en que vivían anteriormente era muy presente y buscaban darle un aire diferente.

Finalizamos con la terraza, otro espacio que valoraban mucho de este piso. Con la reforma se ha instalado en el salón una balconera de doble hoja que quedan ocultas (de la marca Kline) y que permite duplicar el paso a la terraza, quedando así una comunicación mucho más fluida entre los dos espacios e incentivando así que la disfruten más. De este espacio destacar el banco de obra y la estructura creada en listones de madera con jardín vertical.

Fotografías: Irene Díaz

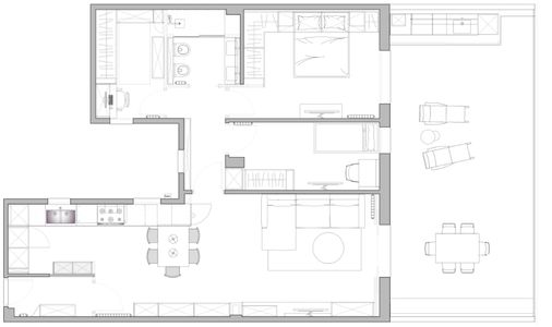
Antes y después

¿Te gustaría una reforma así en tu casa?

Contáctanos y haremos realidad tu proyecto

Otros proyectos relacionados

Gran Via

Bonanova

Sarrià exterior

¿Te gustaría una reforma así en tu casa?

Contáctanos y haremos realidad tu proyecto