Almeda

Descripción del proyecto

Objetivo

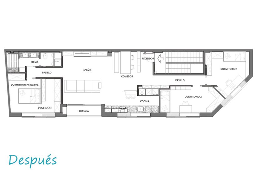
La finalidad de este proyecto era transformar un espacio industrial de algo más de 100m2 (curiosamente situado en una primera planta) en una vivienda confortable, con estancias amplias y con la máxima cantidad de luz natural y ventilación posible.

Esta vivienda está destinada a una familia de 4 personas, con 2 hijos de 9 y 4 años y la distribución está marcada por la etapa que va a afrontar esta familia en los próximos 10-15 años.

Características del proyecto

No se trata de una reforma convencional, ya que fue necesario cerrar huecos de forjados que comunicaban con la planta baja del edificio, modificar huecos de ventanas, reforzar el aislamiento térmico y acústico y modificar instalaciones comunitarias, entre otras cosas.

Además fue necesario tramitar una licencia de cambio de uso industrial a urbano en el Ayuntamiento del municipio. Sincro se ha encargado de los trámites, proyecto y ejecución de la obra, incluyendo la parte de decoración y mobiliario.

Zona de día

En el salón se ha creado una zona muy diáfana y versátil con sofás modulares que se mueven con facilidad. De esta manera pueden dejar una amplia zona para disfrutar con la familia y amigos. Además en este espacio se han instalado 2 soportes soldados al techo original que permiten colgar diferentes accesorios para poder disfrutar mejor de ese amplio espacio (columpios, hamaca, accesorios varios…)

En el mueble de la televisión se ha diseñado una puerta con el revestimiento idéntico al pavimento de parquet sintético que permite ocultar la televisión y de esa manera poder interactuar mejor a nivel familiar sin tenerla a la vista.

En este mismo espacio encontramos la cocina y el comedor. Destacar el look con un toque industrial pero sobrio que se consigue con el uso de chapa de hierro negro presente en varios puntos; el separador de listones de madera que alberga una pequeña barra para comidas informales y el uso predominante del blanco en la cocina que aporta luminosidad, amplía visualmente el espacio y combina genial con el resto de los materiales presentes en la zona de día.

Zona de noche

Los dormitorios de los niños, de aproximadamente 12 m2 cumplen los requisitos como decimos de las necesidades actuales y futuras de las próximas etapas de crecimiento. La zona de día separa la zona de dormitorios de niños a la del dormitorio principal, de esta manera se consigue un nivel de privacidad adecuado para todos los ocupantes.

En contrapartida el dormitorio principal es más ajustado en medidas pero está bien complementado con un vestidor independiente y otro armario auxiliar.

Al lado del dormitorio encontramos un amplio baño. Se ha utilizado el blanco en el mobiliario y los revestimientos. Un color que aporta elegancia y que es sinónimo de limpieza. Además al no disponer de ventanas ayuda a reflejar más la luz haciendo que el baño se vea más iluminado. Destacar la zona de lavandería que se encuentra oculta en un armario de puertas plegables para que pase desapercibido cuando no esté en uso.

Otros datos de interés

Destacar el proceso de conseguir la luz y poder comunicarla bien por todas las estancias. Se ha conseguido abriendo grandes ventanales con control solar y vidrios que dejan pasar la luz a los dos distribuidores y al baño, que son las zonas con menos luz de la vivienda.

Para puertas y zócalos se ha buscado una solución minimalista mediante puertas correderas empotradas sin tapajuntas y zócalos enrasados a nivel de pared, consiguiendo una pureza de líneas inusual y evitando los distintos niveles habituales en las entregas.

La pintura de todo el piso es en acabado esmalte al agua, que permite lavarse en caso de manchas y así tener un mejor mantenimiento.

La vivienda está controlada por un sistema domótico Z-wave que permite al usuario regular iluminación, controlar consumos e interactuar con diferentes escenas programadas.

En cuanto al clima, también es posible segmentar temperaturas por zonas, crear programaciones independientes y actuar a distancia desde fuera de la vivienda.

Principales marcas y fabricantes

El pavimento es de parquet sintético de lama grande de Parador. Los revestimientos de las habitaciones son de Vescom y Saint Honoré.

El sistema de climatización inteligente Airzone.

La carpintería de aluminio de K-line, y las cortinas y  screens de Serveis Tèxtils.

Todo el mobiliario a medida de material laminado en blanco mate y material laminado imitación madera oscura, son de Tegar Mobel. El mobiliario auxiliar como mesa, banco, sillas, taburetes y lámparas son de Kave Home. El sofá de Gamamobel de la colección Siros. Y el soporte de pared para televisión articulado de Vogel’s.

La cerámica porcelánica de baño es de Mirage, lavabos e inodoro-bidé AquaClean de Geberit y mampara de ducha Lasser.

Electrodomésticos  Neff, Bosch y Franke. Y la encimera y el frontal de la cocina de Neolith.

¡No te pierdas el vídeo del antes y después!

Características

Plano de distribución en miniatura reforma de piso

Descripción del proyecto

Objetivo

La finalidad de este proyecto era transformar un espacio industrial de algo más de 100m2 (curiosamente situado en una primera planta) en una vivienda confortable, con estancias amplias y con la máxima cantidad de luz natural y ventilación posible.

Esta vivienda está destinada a una familia de 4 personas, con 2 hijos de 9 y 4 años y la distribución está marcada por la etapa que va a afrontar esta familia en los próximos 10-15 años.

Características del proyecto

No se trata de una reforma convencional, ya que fue necesario cerrar huecos de forjados que comunicaban con la planta baja del edificio, modificar huecos de ventanas, reforzar el aislamiento térmico y acústico y modificar instalaciones comunitarias, entre otras cosas.

Además fue necesario tramitar una licencia de cambio de uso industrial a urbano en el Ayuntamiento del municipio. Sincro se ha encargado de los trámites, proyecto y ejecución de la obra, incluyendo la parte de decoración y mobiliario.

Zona de día

En el salón se ha creado una zona muy diáfana y versátil con sofás modulares que se mueven con facilidad. De esta manera pueden dejar una amplia zona para disfrutar con la familia y amigos. Además en este espacio se han instalado 2 soportes soldados al techo original que permiten colgar diferentes accesorios para poder disfrutar mejor de ese amplio espacio (columpios, hamaca, accesorios varios…)

En el mueble de la televisión se ha diseñado una puerta con el revestimiento idéntico al pavimento de parquet sintético que permite ocultar la televisión y de esa manera poder interactuar mejor a nivel familiar sin tenerla a la vista.

En este mismo espacio encontramos la cocina y el comedor. Destacar el look con un toque industrial pero sobrio que se consigue con el uso de chapa de hierro negro presente en varios puntos; el separador de listones de madera que alberga una pequeña barra para comidas informales y el uso predominante del blanco en la cocina que aporta luminosidad, amplía visualmente el espacio y combina genial con el resto de los materiales presentes en la zona de día.

Zona de noche

Los dormitorios de los niños, de aproximadamente 12 m2 cumplen los requisitos como decimos de las necesidades actuales y futuras de las próximas etapas de crecimiento. La zona de día separa la zona de dormitorios de niños a la del dormitorio principal, de esta manera se consigue un nivel de privacidad adecuado para todos los ocupantes.

En contrapartida el dormitorio principal es más ajustado en medidas pero está bien complementado con un vestidor independiente y otro armario auxiliar.

Al lado del dormitorio encontramos un amplio baño. Se ha utilizado el blanco en el mobiliario y los revestimientos. Un color que aporta elegancia y que es sinónimo de limpieza. Además al no disponer de ventanas ayuda a reflejar más la luz haciendo que el baño se vea más iluminado. Destacar la zona de lavandería que se encuentra oculta en un armario de puertas plegables para que pase desapercibido cuando no esté en uso.

Otros datos de interés

Destacar el proceso de conseguir la luz y poder comunicarla bien por todas las estancias. Se ha conseguido abriendo grandes ventanales con control solar y vidrios que dejan pasar la luz a los dos distribuidores y al baño, que son las zonas con menos luz de la vivienda.

Para puertas y zócalos se ha buscado una solución minimalista mediante puertas correderas empotradas sin tapajuntas y zócalos enrasados a nivel de pared, consiguiendo una pureza de líneas inusual y evitando los distintos niveles habituales en las entregas.

La pintura de todo el piso es en acabado esmalte al agua, que permite lavarse en caso de manchas y así tener un mejor mantenimiento.

La vivienda está controlada por un sistema domótico Z-wave que permite al usuario regular iluminación, controlar consumos e interactuar con diferentes escenas programadas.

En cuanto al clima, también es posible segmentar temperaturas por zonas, crear programaciones independientes y actuar a distancia desde fuera de la vivienda.

Principales marcas y fabricantes

El pavimento es de parquet sintético de lama grande de Parador. Los revestimientos de las habitaciones son de Vescom y Saint Honoré.

El sistema de climatización inteligente Airzone.

La carpintería de aluminio de K-line, y las cortinas y  screens de Serveis Tèxtils.

Todo el mobiliario a medida de material laminado en blanco mate y material laminado imitación madera oscura, son de Tegar Mobel. El mobiliario auxiliar como mesa, banco, sillas, taburetes y lámparas son de Kave Home. El sofá de Gamamobel de la colección Siros. Y el soporte de pared para televisión articulado de Vogel’s.

La cerámica porcelánica de baño es de Mirage, lavabos e inodoro-bidé AquaClean de Geberit y mampara de ducha Lasser.

Electrodomésticos  Neff, Bosch y Franke. Y la encimera y el frontal de la cocina de Neolith.

¡No te pierdas el vídeo del antes y después!

Antes y después

¿Te gustaría una reforma así en tu casa?

Contáctanos y haremos realidad tu proyecto

Otros proyectos relacionados

Gran Via

Bonanova

Sarrià exterior

¿Te gustaría una reforma así en tu casa?

Contáctanos y haremos realidad tu proyecto