Food Trade Center

En este proyecto se reformó un espacio de negocios ubicado dentro del recinto de Mercabarna, uno de los principales mercados europeos de alimentos. Inicialmente el espacio estaba dividido por diferentes locales, y presentaba unas instalaciones en mal estado y una eficiencia energética muy baja.

El objetivo del proyecto era crear un nuevo espacio de despachos y oficinas para alquilarlas por horas, días, semanas o meses, adaptándose así a las necesidades actuales de los profesionales que buscan trabajar en un espacio cómodo y flexible.

La distribución final del centro está compuesta por dos núcleos de circulación circular, uno por el perímetro de los despachos, y otro por la zona de los servicios. En total el Food Trade Center dispone de 10 despachos individuales, 9 de dobles y 2 salas de reuniones; todas ellas equipadas con todo lo necesario: mobiliario, fibra óptica, wifi, calefacción, aire acondicionado, etc. Y una zona comuna compuesta por la sala de espera, los baños, y una zona de comedor y relax.

Características

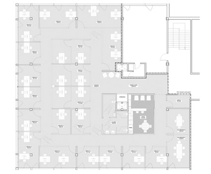
Plano distribución interior food Trade Center

En este proyecto se reformó un espacio de negocios ubicado dentro del recinto de Mercabarna, uno de los principales mercados europeos de alimentos. Inicialmente el espacio estaba dividido por diferentes locales, y presentaba unas instalaciones en mal estado y una eficiencia energética muy baja.

El objetivo del proyecto era crear un nuevo espacio de despachos y oficinas para alquilarlas por horas, días, semanas o meses, adaptándose así a las necesidades actuales de los profesionales que buscan trabajar en un espacio cómodo y flexible.

La distribución final del centro está compuesta por dos núcleos de circulación circular, uno por el perímetro de los despachos, y otro por la zona de los servicios. En total el Food Trade Center dispone de 10 despachos individuales, 9 de dobles y 2 salas de reuniones; todas ellas equipadas con todo lo necesario: mobiliario, fibra óptica, wifi, calefacción, aire acondicionado, etc. Y una zona comuna compuesta por la sala de espera, los baños, y una zona de comedor y relax.

Otros proyectos relacionados

English Doctor

Cafetería El Taller Paral·lel

Food Trade Center