Oficina Fincas Blanco

Rediseño y reforma de una inmobiliaria con un estilo más moderno y funcional

En este proyecto se ha rediseñado la imagen corporativa de las oficinas de Fincas Blanco, una empresa del sector inmobiliario. Hemos comenzado con la sede ubicada en  Cornellá de Llobregat, misma ciudad donde se fundó esta empresa.

Con más de 15 años de su existencia había la necesidad de actualizar la imagen de las oficinas, ya que como todo el mundo sabe “la primera impresión es lo que cuenta”. El objetivo del proyecto era buscar un nuevo diseño para transmitir una imagen más actual y ofrecer un mejor servicio en las visitas que se reciben en sus instalaciones.

Para la renovación se tuvo en cuenta la imagen corporativa, las necesidades actuales y futuras de la empresa y las características del nuevo local.

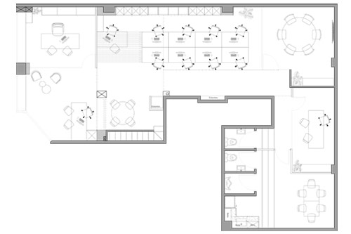
Se ha optado por una distribución visualmente más abierta y funcional gracias a las mamparas divisorias acristaladas que separan los diferentes ambientes. Al disponer de un local con más metros cuadrados se ha podido ampliar las zonas destinadas a puestos operativos e incrementar el número de salas de reuniones. Además de incluir una zona privada donde se han ubicado los servicios y un espacio reservado con «office» para el personal comer o desconectar del trabajo.

A nivel decorativo el equipo de Sincro se ha optado por la combinación de estilo nórdico (más presente en el despacho de dirección) a través del uso de madera que aporta calidez junto al minimalismo del blanco; añadiendo un toque más industrial al resto de la oficina con los tonos negros en madera, estructuras de hierro… En la zona recepción potenciamos los tonos azules (propio de la marca corporativa) en las luminarias, sillas y butacas. La decoración con plantas acaban de aportar oxígeno, frescura y un toque de color.

Destacar la combinación de cuadros con fotos antiguas y actuales de Cornellá y alrededores, y las dos estructuras fabricadas con listones de madera que hacen de divisoria, y a la vez le dan carácter y personalidad a la decoración.

Otro punto a resaltar es el diseño de la iluminación, donde gracias a los planos acristalados y el blanco de la pintura se permite la entrada de la luz natural en toda la oficina. Y asimismo se ha jugado con diferentes tipos de iluminación artificial consiguiendo un resultado elegante y armónico.

Por último mencionar algunas de las marcas y fabricantes con los que hemos trabajado en este proyecto. Sillas, mesas y lámparas decorativas de Kave Home; el resto de mobiliario (armarios, estantes, librerías y mesas de trabajo) de Tegar Mobel. Pantallas suspendidas de led de Kams International Ligthing. Tema textil (cortinas y tapizados) de Serveis Tèxtils. Y los listones de madera de Gabarró.

Fotografías: Irene Diaz

Características

Plano de la distribución interior oficina Fincas Blanco

Rediseño y reforma de una inmobiliaria con un estilo más moderno y funcional

En este proyecto se ha rediseñado la imagen corporativa de las oficinas de Fincas Blanco, una empresa del sector inmobiliario. Hemos comenzado con la sede ubicada en  Cornellá de Llobregat, misma ciudad donde se fundó esta empresa.

Con más de 15 años de su existencia había la necesidad de actualizar la imagen de las oficinas, ya que como todo el mundo sabe “la primera impresión es lo que cuenta”. El objetivo del proyecto era buscar un nuevo diseño para transmitir una imagen más actual y ofrecer un mejor servicio en las visitas que se reciben en sus instalaciones.

Para la renovación se tuvo en cuenta la imagen corporativa, las necesidades actuales y futuras de la empresa y las características del nuevo local.

Se ha optado por una distribución visualmente más abierta y funcional gracias a las mamparas divisorias acristaladas que separan los diferentes ambientes. Al disponer de un local con más metros cuadrados se ha podido ampliar las zonas destinadas a puestos operativos e incrementar el número de salas de reuniones. Además de incluir una zona privada donde se han ubicado los servicios y un espacio reservado con «office» para el personal comer o desconectar del trabajo.

A nivel decorativo el equipo de Sincro se ha optado por la combinación de estilo nórdico (más presente en el despacho de dirección) a través del uso de madera que aporta calidez junto al minimalismo del blanco; añadiendo un toque más industrial al resto de la oficina con los tonos negros en madera, estructuras de hierro… En la zona recepción potenciamos los tonos azules (propio de la marca corporativa) en las luminarias, sillas y butacas. La decoración con plantas acaban de aportar oxígeno, frescura y un toque de color.

Destacar la combinación de cuadros con fotos antiguas y actuales de Cornellá y alrededores, y las dos estructuras fabricadas con listones de madera que hacen de divisoria, y a la vez le dan carácter y personalidad a la decoración.

Otro punto a resaltar es el diseño de la iluminación, donde gracias a los planos acristalados y el blanco de la pintura se permite la entrada de la luz natural en toda la oficina. Y asimismo se ha jugado con diferentes tipos de iluminación artificial consiguiendo un resultado elegante y armónico.

Por último mencionar algunas de las marcas y fabricantes con los que hemos trabajado en este proyecto. Sillas, mesas y lámparas decorativas de Kave Home; el resto de mobiliario (armarios, estantes, librerías y mesas de trabajo) de Tegar Mobel. Pantallas suspendidas de led de Kams International Ligthing. Tema textil (cortinas y tapizados) de Serveis Tèxtils. Y los listones de madera de Gabarró.

Fotografías: Irene Diaz

Otros proyectos relacionados

English Doctor

Cafetería El Taller Paral·lel

Food Trade Center